Ga naar inhoud

Te koop: woonhuis Saffierdrift 6 3436 BZ Nieuwegein

Verkocht

€ 419.000,- k.k.

Ruime tussenwoning met tuin, berging en achterom.

Centraal in Nieuwegein gelegen in de wijk Batau-Zuid. Stadscentrum City Plaza, winkelcentrum Muntplein, scholen alsmede bus- en tramstation en uitvalswegen zijn makkelijk bereikbaar.

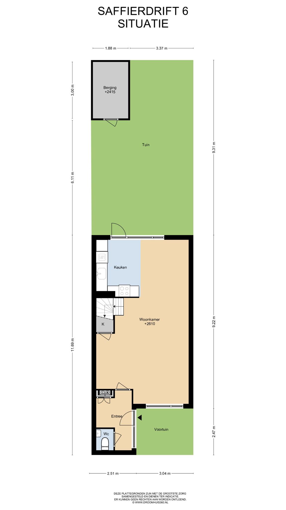
Het bouwjaar van de woning is 1977 en voorzien van dak- en muurisolatie alsmede grotendeels van dubbele beglazing. Het woonoppervlak bedraagt ca. 112m2. Gelegen op een perceel van 114 m2 eigen grond en is de achtertuin ca. 9 meter diep waarin de stenen berging is gelegen alsmede is er een achterom.

Indeling:
Begane grond: ruime entree/hal met meterkast en toilet, mooie lichte doorzonwoonkamer met trapkast, aansluitend de half open keuken welke in 2022 is voorzien van een nieuwe keukeninrichting in hoekopstelling met alle inbouwapparatuur.

1e verdieping: overloop, 2-tal ruime slaapkamers waarvan de slaapkamer aan de achterzijde met dakkapel. De complete badkamer met ligbad, wastafel, douchecabine en 2e toilet is in lichte kleurstelling betegeld.

2e verdieping: voorzolder met c.v.-installatie en w.m.-aansluiting, zolderkamer alsmede grote zolderberging.

Kenmerken:
• Ruime woning
• 9 meter diepe achtertuin
• Centraal in Nieuwegein gelegen
• Prettige woonomgeving Batau-Zuid
• Voorzieningen op loop-/fietsafstand
• Keukeninrichting met apparatuur uit 2022
• Energielabel C
Woning zal verkocht worden met een niet-bewonersclausule

  • 112 m2
  • 114 m2
  • 3

Kenmerken Saffierdrift 6

Overdracht

Vraagprijs€ 419.000,- k.k.
AanvaardingIn overleg

Oppervlaktes en inhoud

Perceel oppervlakte114 m2
Woonoppervlakte112 m2
Inhoud357 m3

Bouw

SoortEengezinswoning
BouwvormBestaande bouw
Bouwjaar1977
Dak typeZadeldak
IsolatievormenDakisolatie, Muurisolatie, Grotendeels dubbelglas
EnergielabelC

Indeling

Aantal verdiepingen3
Aantal kamers4
Aantal slaapkamers3
Aantal badkamers1

Maandlasten

Ligging Saffierdrift 6

Voorzieningen

Centraal gelegen informatie over de buurt

Aantal inwoners

In de gemeente

61.868

Leeftijd

in percentages van totaal

Huishoudsamenstelling

in percentages van totaal

29%

20% NL

30%

20% NL

41%

20% NL

Vergelijkbaar woningaanbod