€ 445.000,- k.k.
Noordstedeweg 112 Nieuwegein
Dit moderne appartement bevindt zich midden in het vernieuwde stadshart van Nieuwegein. Kenmerkend voor dit appartement zijn o.a. een eigen parkeerplaats in de privégarage, mooie daktuin, moderne afwerking en fraai uitzicht. Het Stadskwartier in Nieuwegein biedt ontzettend veel gemak. U bevindt zich hier namelijk te midden van talrijke voorzieningen zoals supermarkten, diverse winkels van City Plaza, restaurants, gezellige terrasjes, het theater, het stadshuis, de bibliotheek en het openbaar vervoer.
Nieuwegein is qua bereikbaarheid ideaal aangezien het centraal in Nederland ligt. De A2, de A12 en de A27 zorgen voor een uitstekende bereikbaarheid met de auto. Met de sneltram bent u binnen 20 minuten in het centrum van Utrecht.
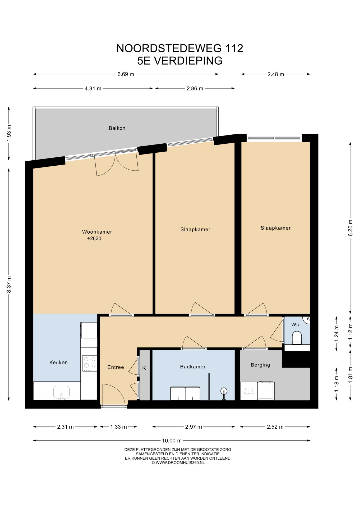
Woonoppervlakte: ca. 87m2
Servicekosten: appartement en parkeerplaats ca. € 190,- p/m (inclusief opstal- en glasverzekering).
INDELING:
BEGANE GROND: Afgesloten entree van het complex met video-intercom, hal met dubbele liftinstallaties en een trappenhuis, welke toegang geven naar de parkeerkelder, woonverdiepingen, bergingen, fietsenstalling en bromfietsstalling. Via de gezamenlijke daktuin, welke alleen toegankelijk is voor bewoners, bereikt men middels lift het appartement.
APPARTEMENT: Mooie lichte entree met meterkast. Sfeervolle en lichte woonkamer met vrij uitzicht over het vernieuwde centrum van Nieuwegein. Moderne open inbouwkeuken voorzien van diverse inbouwapparatuur, te weten: koelkast, vriezer, vaatwasser, combimagnetron, inductie-kookplaat en afzuigkap. Via de woonkamer is het zonnige en vrij gelegen balkon te bereiken. Het balkon biedt mooi vrij zicht over het nieuwe centrum. Het appartement beschikt over een 2-tal ruime slaapkamers. De ruime en moderne badkamer is voorzien van inloopdouche, dubbele vaste wastafel met meubel en modern tegelwerk. Het appartement heeft een modern zwevend toilet met fonteintje (separaat van de badkamer). Het appartement beschikt verder over draai-kiepramen met kunststofkozijnen en dubbele beglazing. Alle ruimtes zijn voorzien van vloerverwarming en vloerkoeling.
Bij het appartement behoort ook een inpandige berging bereikbaar vanuit de entreehal gelokaliseerd op de 2e verdieping. Deze berging is apart af te sluiten en bevindt zich in een vochtvrije ruimte.
KELDER: Afgesloten hal met toegang naar de parkeergarage waar u een eigen parkeerplaats heeft.
Oplevering in overleg
Vraagprijs €445.000,- k.k.
Kenmerken:
– Midden in het stadscentrum met eigen parkeerplaats
– Fraaie en goed onderhouden daktuin
– Moderne strakke keuken / badkamer / toilet
– Vloer me vloerverwarming en vloerkoeling
– Draai-kiepramen met kunststofkozijnen
– Vrij zicht vanaf het balkon
– Actieve en gezonde VVE
– Centraal gelegen nabij alle voorzieningen
Interesse in dit huis? Schakel direct uw eigen NVM-aankoopmakelaar in.
Uw NVM-aankoopmakelaar komt op voor uw belang en bespaart u tijd, geld en zorgen.
Adressen van collega NVM-aankoopmakelaars vindt u op Funda.
- 90 m2
- 2
Kenmerken Noordstedeweg 112
Overdracht
| Vraagprijs | € 445.000,- k.k. |
|---|---|
| Aanvaarding | In overleg |
Oppervlaktes en inhoud
| Woonoppervlakte | 90 m2 |
|---|---|
| Inhoud | 296 m3 |
Bouw
| Soort | Portiekflat |
|---|---|
| Bouwvorm | Bestaande bouw |
| Bouwjaar | 2012 |
| Dak type | Plat dak |
| Isolatievormen | Dakisolatie, Muurisolatie, Vloerisolatie, Dubbelglas, Volledig geïsoleerd |
| Energielabel | A |
Indeling
| Aantal verdiepingen | 1 |
|---|---|
| Aantal kamers | 3 |
| Aantal slaapkamers | 2 |
| Aantal badkamers | 1 |
Maandlasten
Ligging Noordstedeweg 112
Voorzieningen
- Koningin Beatrixschool 427 m Bendienlaan 2729 NIEUWEGEIN
- Universiteit voor Humanistiek 7 km Kromme Nieuwegracht 29 UTRECHT
- ROC Midden Nederland 2 km Newtonbaan 12 NIEUWEGEIN
- Hogeschool voor de Kunsten Utrecht 8 km Nieuwekade 1 UTRECHT
- Universiteit voor Humanistiek 7 km Kromme Nieuwegracht 29 UTRECHT
Centraal gelegen informatie over de buurt
Aantal inwoners
In de gemeente
61.868
Leeftijd
in percentages van totaal
Huishoudsamenstelling
in percentages van totaal
58%
20% NL
25%
20% NL
16%
20% NL