Ga naar inhoud

Te koop: woonhuis Zeearend 91 3435 HC Nieuwegein

Verkocht

€ 425.000,- k.k.

In de gewilde wijk Doorslag vind je deze ruime hoekwoning met eigen oprit. De woning is leuk gelegen met zicht over het woonhofje. Door de oprit naast de woning heeft men de beschikking over een brede achtertuin. De wijk is ruim opgezet voor voornamelijk bestemmingsverkeer en is goed gelegen nabij diverse voorzieningen zoals winkels, Openbaar Vervoer, scholen, park, uitvalswegen en sportvoorzieningen.
Kortom alle voorzieningen liggen om de hoek, zoals u dit van het centraal gelegen Nieuwegein kunt verwachten.

Bouwjaar: 1980
Woonoppervlakte: ca. 103 m2
Perceeloppervlakte: 201 m²

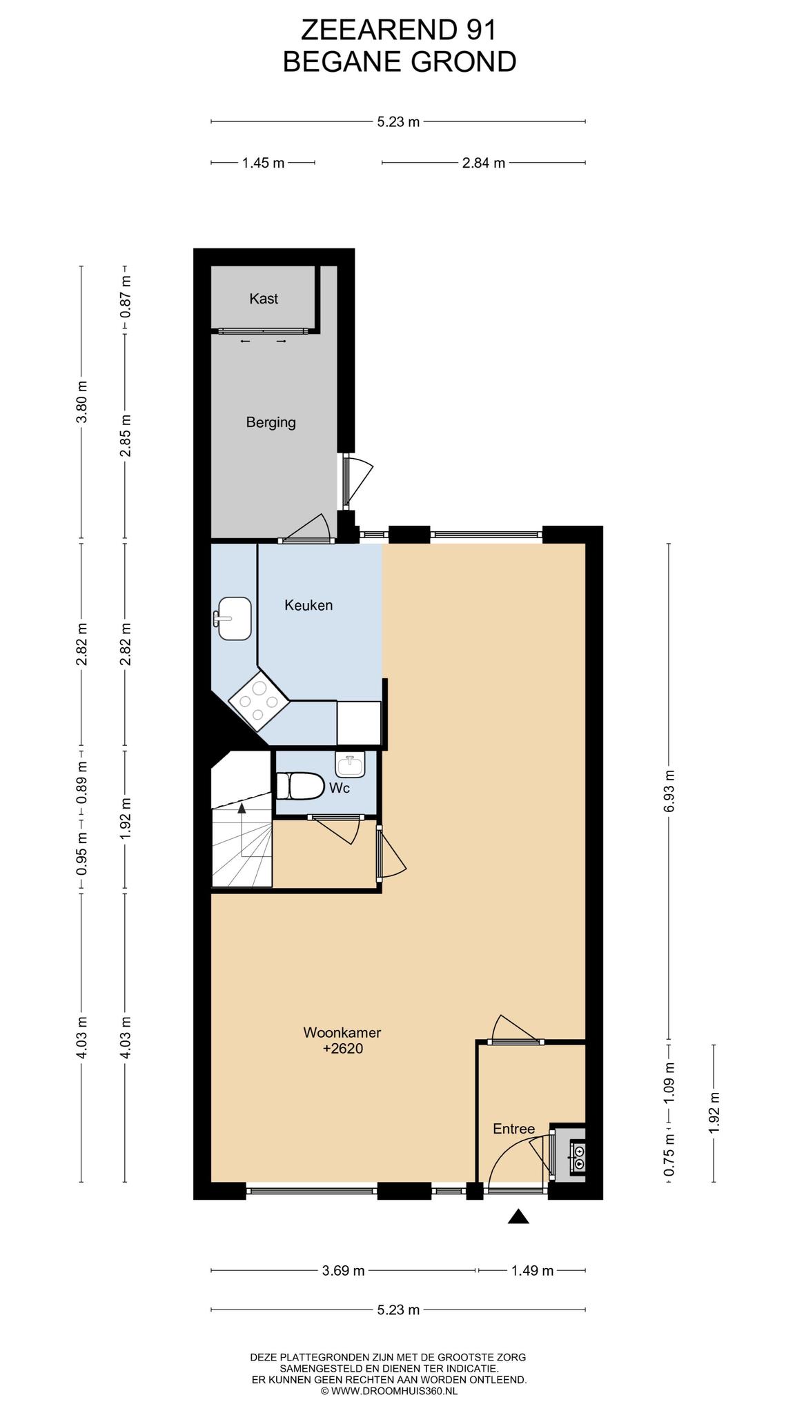
Indeling
Begane grond: Voortuin met aan de zijkant een parkeerplaats op eigen terrein. Entree / hal met meterkast en toegang tot de woonkamer. Aan de voorzijde van de woning is de woonkamer gesitueerd. De keuken vindt u aan de achterzijde van de woning. Via de keuken is tevens de berging inpandig bereikbaar. De keuken is neutraal en netjes uitgevoerd.

Tuin:
De achtertuin is heerlijk breed en vrij gelegen waardoor er veel privacy is. Daarnaast kunt u door de zuidoostelijke ligging heerlijk genieten van veel zonuren.

1e verdieping: overloop met praktische bergkast en toegang tot een 3-tal goed bemeten slaapkamers. De badkamer is voorzien van een inloopdouche, 2de toilet, wastafel en raam.

2e verdieping; overloop met voldoende bergruimte. Royale zolderkamer voorzien van veel lichtinval.

Bijzonderheden:
– Royale hoekwoning;
– In de gewilde wijk Doorslag;
– Parkeren op eigen terrein;
– Royale tuin op het zuidoosten;
– Veel bergruimte.

Aanvaarding: in overleg

Vraagprijs € 425.000,- k.k.

Interesse in dit huis? Schakel direct jouw eigen NVM-aankoopmakelaar in.
De NVM-aankoopmakelaar komt op voor jouw belang en bespaart tijd, geld en zorgen.
Adressen van collega NVM-aankoopmakelaars in Nieuwegein zijn te vinden op Funda.

  • 103 m2
  • 208 m2
  • 4

Kenmerken Zeearend 91

Overdracht

Vraagprijs€ 425.000,- k.k.
AanvaardingIn overleg

Oppervlaktes en inhoud

Perceel oppervlakte208 m2
Woonoppervlakte103 m2
Inhoud375 m3

Bouw

SoortEengezinswoning
BouwvormBestaande bouw
Bouwjaar1980
Dak typeZadeldak
IsolatievormenDubbelglas
EnergielabelB

Indeling

Aantal verdiepingen3
Aantal kamers5
Aantal slaapkamers4
Aantal badkamers1

Maandlasten

Ligging Zeearend 91

Voorzieningen

Centraal gelegen informatie over de buurt

Aantal inwoners

In de gemeente

61.868

Leeftijd

in percentages van totaal

Huishoudsamenstelling

in percentages van totaal

33%

20% NL

34%

20% NL

33%

20% NL

Vergelijkbaar woningaanbod