Ga naar inhoud

Te koop: appartement Weverstedehof 39 3431 HT Nieuwegein

Verkocht

€ 295.000,- k.k.

Bent u op zoek naar een modern en luxe afgewerkt appartement in het centrum van Nieuwegein? Bel gerust om een bezichtiging te plannen!

Dit sfeervolle en instapklare appartement is gelegen in het stadshart van Nieuwegein omgeven door alle voorzieningen als winkels (Cityplaza), openbaar vervoer (bus en tram), ziekenhuis, restaurants, zwembad en sportfaciliteiten.

Deze woning bevindt zich op de eerste etage en is bereikbaar middels een lift. In de onderbouw treft u een eigen privé berging.

Het complex is gebouwd in 1982, voorzien van dubbele beglazing en er is stadsverwarming aanwezig met een elektrische boiler (eigendom).

– Woonoppervlak ca. 59 m2
– Inhoud ca. 187 m3
– De maandelijkse servicekosten voor de woning en berging bedragen tezamen ca.
€138,14 per maand

Complex
Een afgesloten hal met liftinstallatie geeft toegang tot de woning op de eerste verdieping.

Souterrain:
In de kelder treft u een privé berging.

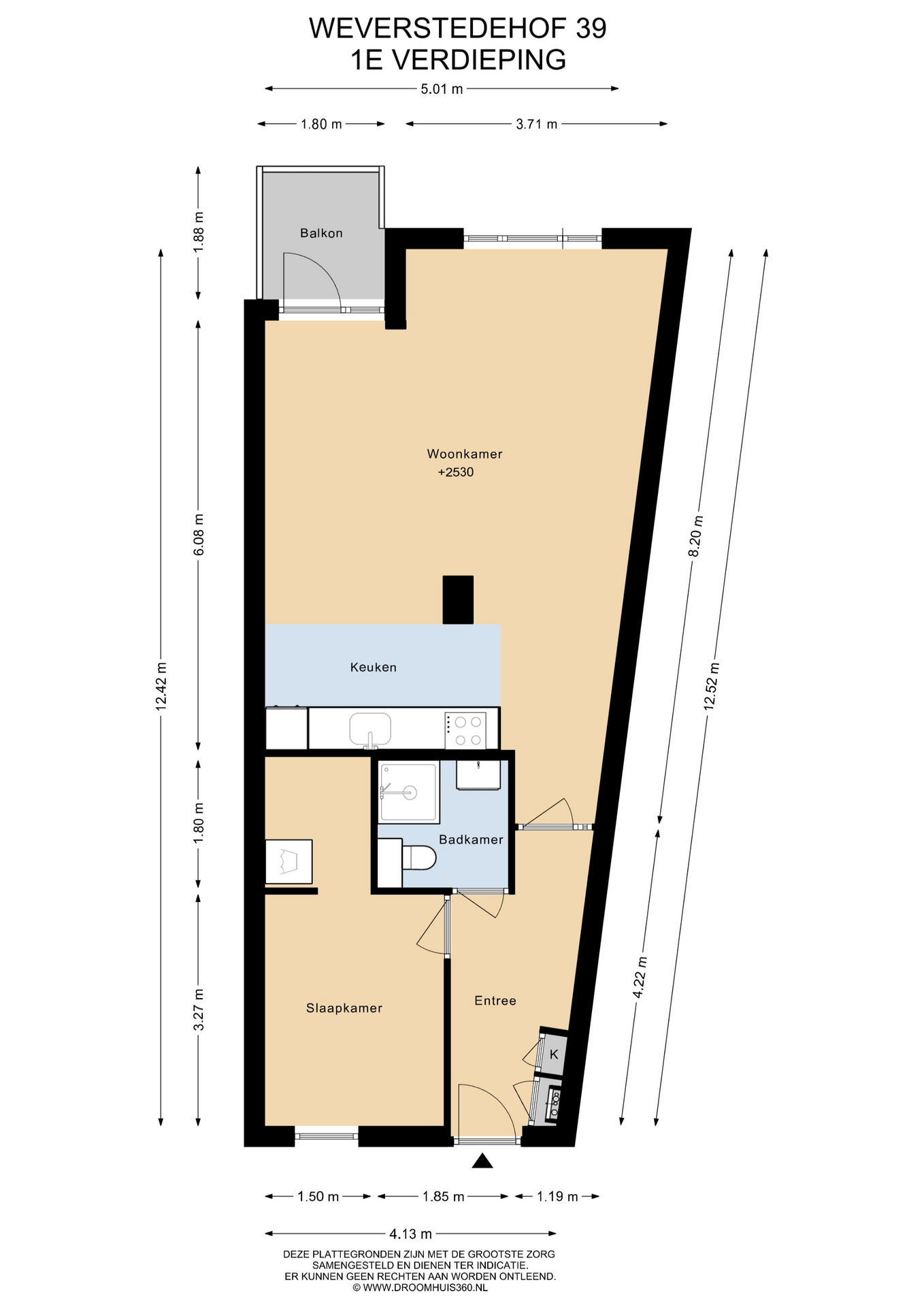
Indeling appartement:
Goede entree / hal met meterkast. Via de hal is de goed bemeten slaapkamer bereikbaar. Via de slaapkamer is de walk-in-closet met wasruimte bereikbaar. Modern en luxe afgewerkte badkamer met vaste wastafel, inloopdouche en toilet. De ruime en gezellige woonkamer heeft een deur naar het balkon. Het balkon heeft een vrije wegkijk. Moderne open inbouwkeuken welke is voorzien van diverse van inbouwapparatuur, te weten: koelkast, combimagnetron, vaatwasser, inductiekookplaat en afzuiging. Het geheel is afgewerkt met mooie laminaatvloeren.

Oplevering in overleg

Vraagprijs: €295.000,- k.k.

Kenmerken:
– Compleet verbouwd appartement waar u direct in kunt trekken
– Vrij uitzicht midden in het centrum
– Moderner en luxe keuken en badkamer
– Energielabel B
– 2 eigen bergingen, 1 op de verdieping en 1 in de onderbouw
– Ligging direct bij de voorzieningen
– Liftinstallatie

Interesse in dit huis? Schakel direct uw eigen NVM-aankoopmakelaar in.
Uw NVM-aankoopmakelaar komt op voor uw belang en bespaart u tijd, geld en zorgen.
Adressen van collega NVM-aankoopmakelaars vindt u op Funda.

  • 59 m2
  • 1

Kenmerken Weverstedehof 39

Overdracht

Vraagprijs€ 295.000,- k.k.
AanvaardingIn overleg

Oppervlaktes en inhoud

Woonoppervlakte59 m2
Inhoud187 m3

Bouw

SoortGalerijflat
BouwvormBestaande bouw
Bouwjaar1982
Dak typeSamengesteld dak
IsolatievormenDakisolatie, Muurisolatie, Dubbelglas
EnergielabelB

Indeling

Aantal verdiepingen1
Aantal kamers2
Aantal slaapkamers1
Aantal badkamers1

Maandlasten

Ligging Weverstedehof 39

Voorzieningen

Centraal gelegen informatie over de buurt

Aantal inwoners

In de gemeente

61.868

Leeftijd

in percentages van totaal

Huishoudsamenstelling

in percentages van totaal

58%

20% NL

25%

20% NL

16%

20% NL

Vergelijkbaar woningaanbod