€ 419.000,- k.k.
In de rustige en groene woonwijk ‘Hoog-Zandveld’ gelegen ruime tussenwoning !
Omgeven door het ‘IJsselbos’ , ‘Park Oudegein’ en ‘Kromme IJssel’ overheerst de rust. De dagelijkse voorzieningen als winkelcentrum Hoog Zandeveld, Openbaar vervoer (bus en tram), scholen en sportvoorzieningen zijn in de directe omgeving te vinden. Door de goede ontsluiting zijn de Rijkswegen makkelijk bereikbaar.
De woning is in 1975 gebouwd en voorzien van dakisolatie en dubbele beglazing. Verwarming middels c.v.-gas (combi ketel). Het woonoppervlak bedraagt ca. 109m2. Gelegen op een perceel van 111m2 met voor- en achtertuin met achterom. Er is een aangebouwde stenen berging welke is voorzien van elektra.
Indeling:
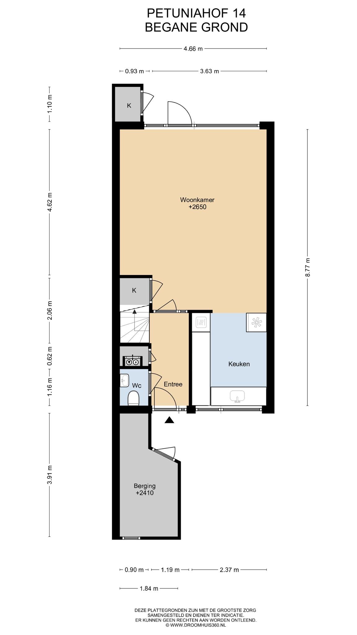
Begane grond: entree/hal met meterkast en toilet. De woonkamer is tuingericht en geeft via een deur toegang tot de achtergelegen tuin. De halfopen keuken bevindt zich aan de voorzijde en is voorzien van een eenvoudige keukeninrichting in hoekopstelling met 4-pits gas, afzuigkap, vaatwasser en oven.
1e verdieping: overloop met inbouwkast, 2-tal ruim bemeten slaapkamers. De grote slaapkamer aan de achterkantzijde kan tevens opgesplitst worden in twee slaapkamers. Complete badkamer met wastafel in ombouw, ligbad, douchecabine en 2e toilet.
2e verdieping: voorzolder met w.m.-aansluiting, ruime zolderkamer met dakkapellen zowel aan voor- als achterzijde waardoor een extra kamer tot de mogelijkheden behoort. Alsmede zolderberging.
Kenmerken:
• Fraaie ligging
• Rust en groen overheersen
• Ruime en praktische indeling
• Extra kamer mogelijk
• Alle voorzieningen in de directe omgeving
• Goede bereikbaarheid, tevens met openbaar vervoer
• Ruime voor- en achtertuin
Aanvaarding: in overleg
Interesse in dit huis? Schakel direct jouw eigen NVM-aankoopmakelaar in.
De NVM-aankoopmakelaar komt op voor jouw belang en bespaart tijd, geld en zorgen.
Adressen van collega NVM-aankoopmakelaars in Nieuwegein zijn te vinden op Funda.
- 109 m2
- 111 m2
- 3
Kenmerken Petuniahof 14
Overdracht
| Vraagprijs | € 419.000,- k.k. |
|---|---|
| Aanvaarding | In overleg |
Oppervlaktes en inhoud
| Perceel oppervlakte | 111 m2 |
|---|---|
| Woonoppervlakte | 109 m2 |
| Inhoud | 355 m3 |
Bouw
| Soort | Eengezinswoning |
|---|---|
| Bouwvorm | Bestaande bouw |
| Bouwjaar | 1975 |
| Dak type | Zadeldak |
| Isolatievormen | Dakisolatie, Dubbelglas |
| Energielabel | C |
Indeling
| Aantal verdiepingen | 3 |
|---|---|
| Aantal kamers | 4 |
| Aantal slaapkamers | 3 |
| Aantal badkamers | 1 |
Maandlasten
Ligging Petuniahof 14
Voorzieningen
- Rooms Katholieke Basisschool de Tweeklank 420 m Lupinestraat 1 NIEUWEGEIN
- Universiteit voor Humanistiek 10 km Kromme Nieuwegracht 29 UTRECHT
- ROC Midden Nederland 3 km Newtonbaan 12 NIEUWEGEIN
- Hogeschool voor de Kunsten Utrecht 10 km Nieuwekade 1 UTRECHT
- Universiteit voor Humanistiek 10 km Kromme Nieuwegracht 29 UTRECHT
Centraal gelegen informatie over de buurt
Aantal inwoners
In de gemeente
61.868
Leeftijd
in percentages van totaal
Huishoudsamenstelling
in percentages van totaal
24%
20% NL
35%
20% NL
40%
20% NL