Prijs op aanvraag
In de gewilde wijk Hoogzandveld hebben wij deze fijne eindwoning in verkoop gekregen. De woning kenmerkt zicht door de fijne ruimtes, de grote raampartijen en de prettige achtertuin met volop zon! Als je deze woning koopt beschik je over een ruime woonkamer, aangebouwde keuken, 4 slaapkamers, complete badkamer en ruime berging in de achtertuin.
De ligging van de woning is zeer prettig te noemen. De voorzijde is autoluw gelegen, wat lekker rustig woont en veilig is voor kleine kinderen. Als je de voordeur uitstapt sta je zo bij de Rietput of het IJsselbos en liggen de voorzieningen zoals scholen, winkels en het openbaar vervoer op korte afstand. Daarnaast zijn het vernieuwde stadshart van Nieuwegein en de uitvalswegen snel bereikbaar. Kortom ideaal!
Je kunt deze woning bekijken op de unieke website lavendelhof56.nl.
Graag nemen wij je mee voor een rondleiding.
Indeling: Via de ruime voortuin kom je bij de voordeur.
Begane grond:
Entree, hal met toegang tot de toiletruimte met moderne afwerking en voorzien van wandcloset en fontein. Vervolgens lopen we langs een opbergkast waar tevens de meterkast (vernieuwd in 2018) is gesitueerd en komen we in de woonkamer.
De woonkamer zal je doen verbazen. Omdat de keuken in de uitbouw is gelegen heb je een extra ruime woonkamer die goed is in te delen en heeft ook nog eens een schuifpui naar de achtertuin. Verder hebben we in de woonkamer de trapopgang, trapkast, een romantische open haard en een fraaie houten vloer!
Vanuit de woonkamer kunnen we naar de aangebouwde keuken. Hier staat een nette keukenopstelling voorzien van diverse apparatuur zoals een inductiekookplaat (2023), afzuigkap, oven, koelkast en uiteraard ontbreekt de vaatwasser (2015) niet. Vanuit de keuken hebben we eveneens toegang naar de achtertuin.
De achtertuin is gelegen op het westen. Door de hoekligging van de woning heb je volop zon in de tuin en kan jij uren genieten van al het moois dat de zon je te bieden heeft. Achter in de tuin staat de berging met overkapping en achterom.
1e Verdieping:
Overloop met aan de rechterzijde de complete badkamer. Deze ruimte is voorzien van een lichte afwerking met royaal hoekbad, douchecabine, wastafel met handdoekenkast en wandcloset.
Vervolgens hebben we op deze verdieping 3 ruime slaapkamers die allen variëren qua oppervlak. De overloop en de slaapkamers zijn voorzien van een fraaie houten vloer.
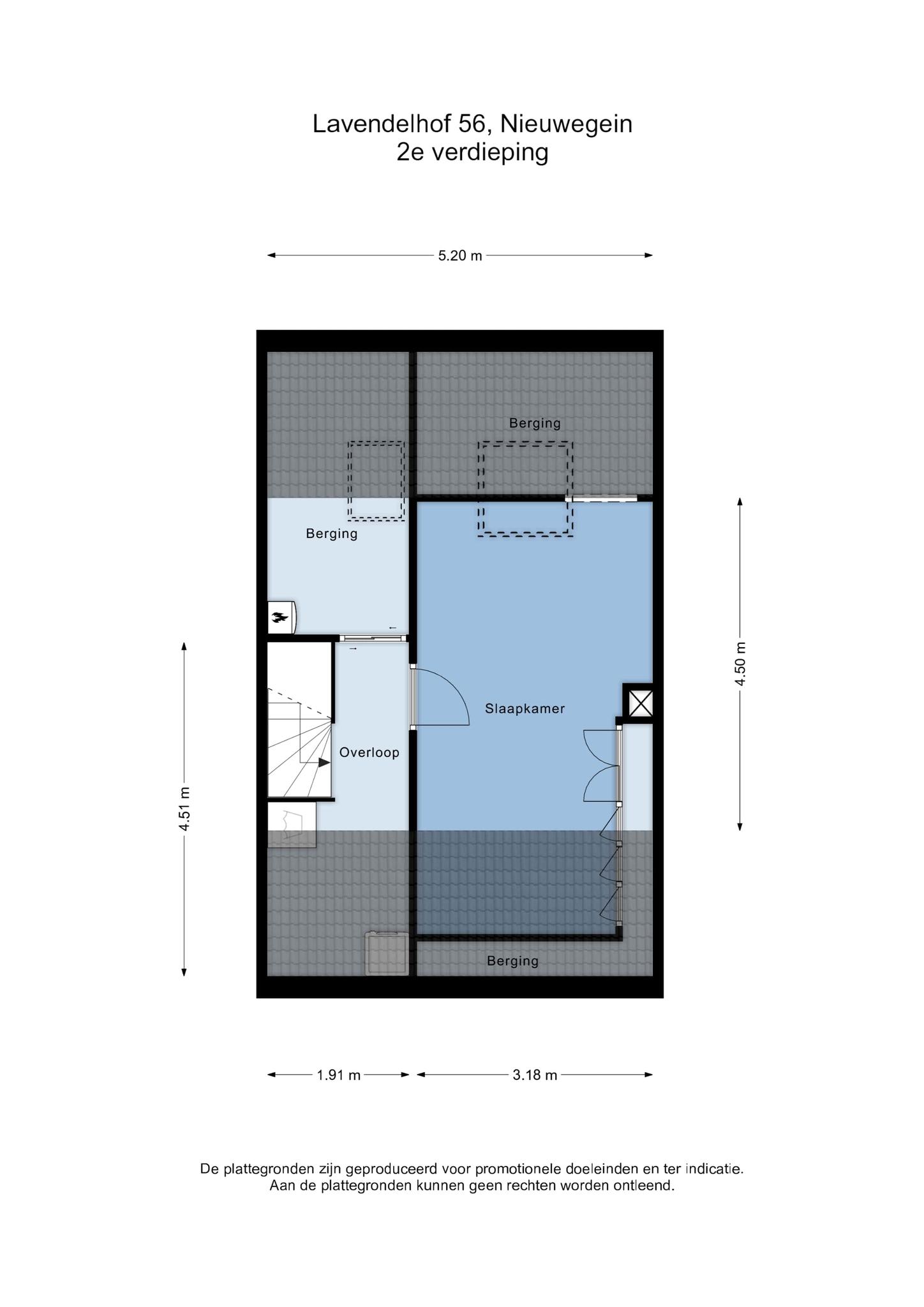
2e Verdieping:
Overloop met opstelplaats van de wasmachine en wasdroger. Vervolgens hebben we toegang tot een fijne berging met opstelplaats van de cv-combiketel. Vierde slaapkamer met inbouwkast en dakraam.
Bijzonderheden:
– Ruime eindwoning gelegen in het gewilde Hoogzandveld;
– Rustige ligging aan autoluw straatje;
– Aangebouwde keukenruimte, dus een extra ruime woonkamer;
– Kozijnen woonkamer, slaapkamers, badkamer en dakraam zijn vervangen in 2016;
– Begane grond en 1e verdieping voorzien van houten vloer;
– Overkapping aan berging is in 2022 gerealiseerd;
– Centrale locatie nabij diverse voorzieningen.
Interesse in dit huis? Schakel direct je eigen NVM-aankoopmakelaar in.
Een NVM-aankoopmakelaar komt op voor jouw belang en bespaart je tijd, geld en zorgen.
Adressen van collega NVM-aankoopmakelaars vind je op Funda.
- 119 m2
- 143 m2
- 4
Kenmerken Lavendelhof 56
Overdracht
| Woning prijs | Prijs op aanvraag |
|---|---|
| Aanvaarding | In overleg |
Oppervlaktes en inhoud
| Perceel oppervlakte | 143 m2 |
|---|---|
| Woonoppervlakte | 119 m2 |
| Inhoud | 403 m3 |
Bouw
| Soort | Eengezinswoning |
|---|---|
| Bouwvorm | Bestaande bouw |
| Bouwjaar | 1974 |
| Dak type | Samengesteld dak |
| Isolatievormen | Grotendeels dubbelglas |
| Energielabel | D |
Indeling
| Aantal verdiepingen | 3 |
|---|---|
| Aantal kamers | 5 |
| Aantal slaapkamers | 4 |
| Aantal badkamers | 1 |
Maandlasten
Ligging Lavendelhof 56
Voorzieningen
- Willem Alexander School 229 m Lupinestraat 23 NIEUWEGEIN
- Universiteit voor Humanistiek 10 km Kromme Nieuwegracht 29 UTRECHT
- ROC Midden Nederland 4 km Newtonbaan 12 NIEUWEGEIN
- Hogeschool voor de Kunsten Utrecht 10 km Nieuwekade 1 UTRECHT
- Universiteit voor Humanistiek 10 km Kromme Nieuwegracht 29 UTRECHT
Centraal gelegen informatie over de buurt
Aantal inwoners
In de gemeente
61.868
Leeftijd
in percentages van totaal
Huishoudsamenstelling
in percentages van totaal
24%
20% NL
35%
20% NL
40%
20% NL