Prijs op aanvraag
Starters opgelet! Dit ideale 2-kamer appartement op de 1e verdieping met zonnig balkon is klaar voor een nieuwe eigenaar. Het appartement is netjes onderhouden en beschikt over een ruime berging op de begane grond.
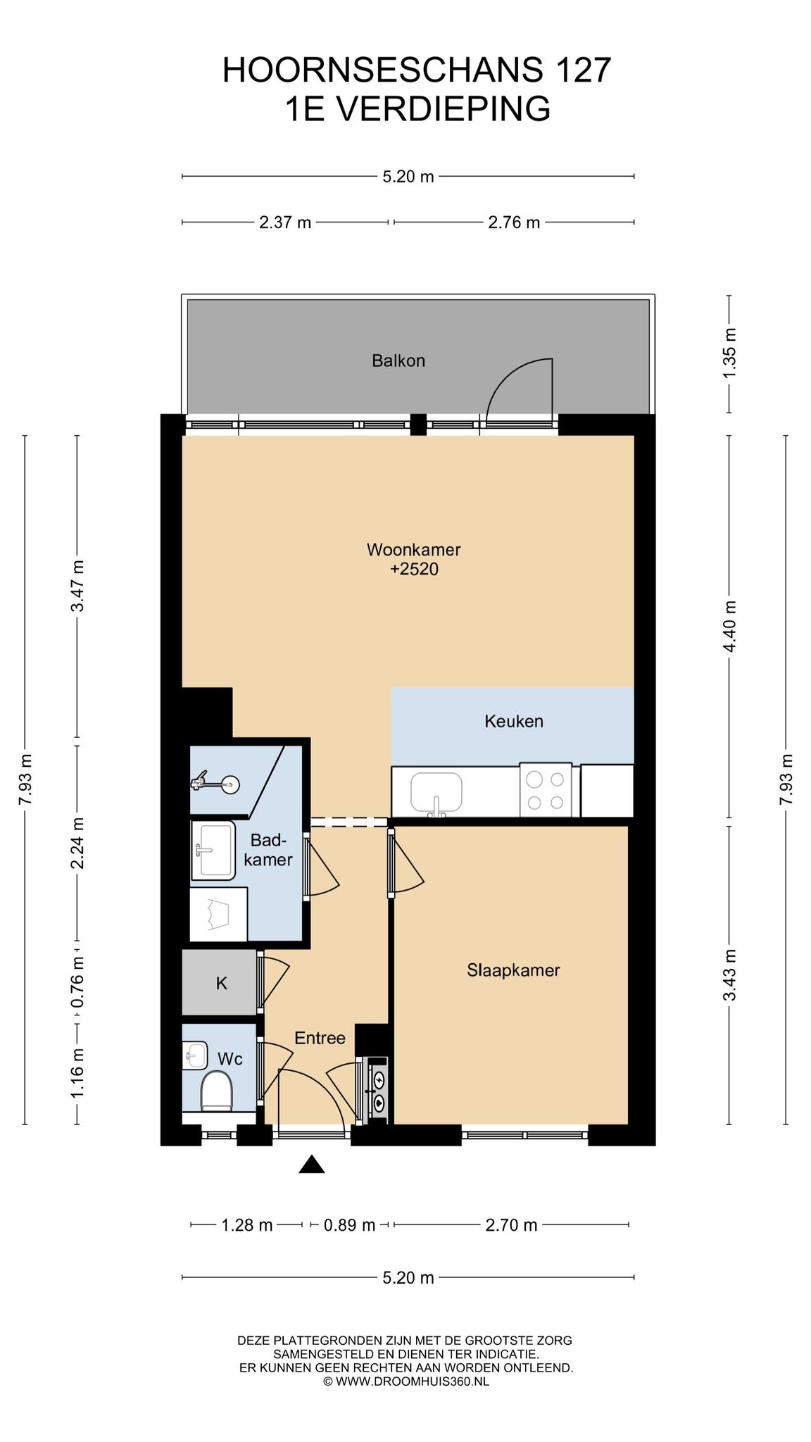
Indeling:
Het appartement is te bereiken vanaf de galerij op de 1e verdieping. De hal met meterkast, toilet, garderobe geeft doorgang naar de badkamer, slaapkamer en woonkamer met open keuken. De woonkamer is licht en gezellig ingericht. Er licht een nette laminaatvloer en er is een fraaie spiegelwand afwerking geplaatst naast de deur naar het balkon. De spiegels geven de appartement een ruimtelijk gevoel.
De open keuken (2020) is uitgerust met 4-pits inductiekookplaat, afzuiger, combi oven van Siemens, vaatwasmachine en een koelkast met vriezer. De keuken is zeer stijlvol door de zwarte frontjes en het marmerlook blad.
De badkamer met inloopdouche, wastafel met spiegel en meubel, ruimte en aansluitingen voor de wasmachine en een droger.
De slaapkamer is licht en gesitueerd op het oosten. Er is voldoende ruimte voor een tweepersoonsbed en een riante kledingkast.
Het balkon ligt op het zonnige westen, zo kan je er heerlijk genieten van een goed boek of onder het genot van een drankje met je vrienden en/of familie bijkletsen. Zie je jezelf al zitten in het zonnetje? Het balkon is voorzien van een nieuwe vlondervloer.
Op de begane grond is er nog een berging van circa 4 m2. Er is elektra en de berging is zeer hoog waardoor het mogelijk is extra bergruimte bovenin te creëren.
Locatie:
Dit fijne appartement is zeer centraal gelegen in een fijne woonwijk met veel groen. De Albert Heijn is op korte loopafstand en het winkelcentrum CityPlaza is op slechts 9 minuten fietsen. De oprit van de A27 is met 5 minuten te bereiken, vanaf daar zijn er snelle aansluitingen op de A12 en de A2. Er zijn goede bus en tram verbindingen naar o.a. Utrecht Centraal. Kortom super centraal en gezellig wonen aan de Hoornseschans 127 in Nieuwegein.
Alle feiten op een rij:
– Sfeervol 2-kamerappartement
– Verwarming en warwater d.m.v. stadsverwarming
– Servicekosten bedragen 160,64 euro p.m.
– Er staan onderhoudswerkzaamheden op de planning voor de voordeur
– Energielabel C
– Berging op de begane grond van circa 4 m2
– Recent vernieuwd openbaar parkeerterrein achter het complex
- 41 m2
- 1
Kenmerken Hoornseschans 127
Overdracht
| Woning prijs | Prijs op aanvraag |
|---|
Oppervlaktes en inhoud
| Woonoppervlakte | 41 m2 |
|---|---|
| Inhoud | 129 m3 |
Bouw
| Soort | Galerijflat |
|---|---|
| Bouwvorm | Bestaande bouw |
| Bouwjaar | 1981 |
| Dak type | Plat dak |
| Isolatievormen | Dakisolatie, Vloerisolatie, Grotendeels dubbelglas |
| Energielabel | C |
Indeling
| Aantal verdiepingen | 1 |
|---|---|
| Aantal kamers | 2 |
| Aantal slaapkamers | 1 |
| Aantal badkamers | 1 |
Maandlasten
Ligging Hoornseschans 127
Voorzieningen
- De Schouw Basisschool 279 m Dintherseschans 30 NIEUWEGEIN
- Universiteit voor Humanistiek 8 km Kromme Nieuwegracht 29 UTRECHT
- ROC Midden Nederland 3 km Newtonbaan 12 NIEUWEGEIN
- Hogeschool voor de Kunsten Utrecht 9 km Nieuwekade 1 UTRECHT
- Universiteit voor Humanistiek 8 km Kromme Nieuwegracht 29 UTRECHT
Centraal gelegen informatie over de buurt
Aantal inwoners
In de gemeente
61.868
Leeftijd
in percentages van totaal
Huishoudsamenstelling
in percentages van totaal
35%
20% NL
26%
20% NL
38%
20% NL