Ga naar inhoud

Te koop: appartement Goudfazant 5 3435 SH Nieuwegein

Verkocht

€ 325.000,- k.k.

Zeer leuk appartement (maisonnette), welke centraal is gelegen en over 2 woonlagen beschikt! De maisonnette heeft een 2-tal ruime slaapkamers. Het ruime en zonnige balkon (ZW) heeft een gunstige en zonnige ligging.

Het appartement ligt vlak bij winkelcentrum ‘Doorslag’, op een paar minuten fietsafstand van winkelcentrum Cityplaza, een gezondheidscentrum, het Antonius ziekenhuis, basis- en middelbare scholen, kinderboerderij IJselstee, de molen, park Oudegein met vele sportvelden, openbaar vervoer (waaronder de sneltramhalte richting Utrecht en IJsselstein) én het ligt zeer centraal ten opzichte van diverse uitvalswegen.

Het appartement heeft de beschikking over stadsverwarming en is dus gasloos! Het geheel heeft een woonoppervlakte van 77m2.

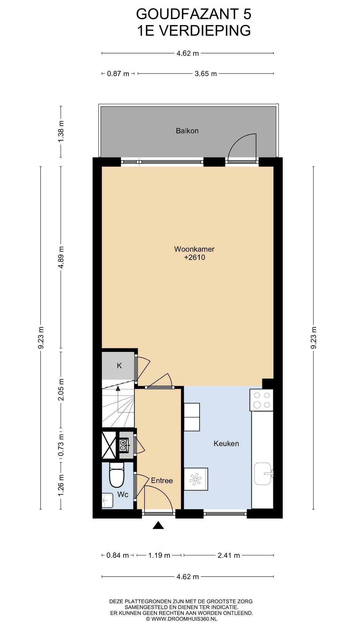
Indeling:
Begane grond:
Trapopgang en brievenbus. Op de begane grond heeft u tevens een eigen berging, voorzien van elektra. Parkeergelegenheid is in de directe omgeving.

Eerste verdieping:
Entree hal, met een toilet, meterkast en de trap naar boven. Via de hal komt u de woonkamer binnen, welke ruim en licht is. De woonkamer telt ongeveer 25m². Aan de voorzijde van het appartement, treft u de keuken aan. De keuken is neutraal van opzet en keurig uitgevoerd.
Vanuit de woonkamer heeft u tevens toegang tot het zonnige balkon aan de achterzijde van het complex. Het balkon is gelegen op het zonnige zuidwesten. Op de verdieping ligt een goede laminaatvloer.

Tweede verdieping:
Overloop, welke toegang geeft tot de keurige badkamer, voorzien van een wastafel met meubel en wasmachineaansluiting en een inloopdouche. Het appartement heeft de beschikking over een 2-tal riante slaapkamers. Op de verdieping ligt een goede laminaatvloer.

Oplevering in overleg

Bijzonderheden:
• Ruime maisonnette met 2 slaapkamers
• Royale lichte woonkamer
• Ruim en zonnig balkon op het zuidwesten
• Berging in de onderbouw;
• Ideaal gesitueerd nabij winkelcentrum, stadscentrum, park, scholen, Antonius ziekenhuis , sportvoorzieningen en openbaar vervoer.
• Energielabel A

Interesse in dit huis? Schakel direct je eigen NVM-aankoopmakelaar in.
Een NVM-aankoopmakelaar komt op voor jouw belang en bespaart je tijd, geld en zorgen.
Adressen van collega NVM-aankoopmakelaars vind je op Funda.

  • 77 m2
  • 2

Kenmerken Goudfazant 5

Overdracht

Vraagprijs€ 325.000,- k.k.
AanvaardingIn overleg

Oppervlaktes en inhoud

Woonoppervlakte77 m2
Inhoud243 m3

Bouw

SoortMaisonnette
BouwvormBestaande bouw
Bouwjaar1980
Dak typePlat dak
IsolatievormenDakisolatie, Muurisolatie, Dubbelglas
EnergielabelA

Indeling

Aantal verdiepingen2
Aantal kamers3
Aantal slaapkamers2
Aantal badkamers1

Maandlasten

Ligging Goudfazant 5

Voorzieningen

Centraal gelegen informatie over de buurt

Aantal inwoners

In de gemeente

61.868

Leeftijd

in percentages van totaal

Huishoudsamenstelling

in percentages van totaal

33%

20% NL

34%

20% NL

33%

20% NL

Vergelijkbaar woningaanbod