€ 899.500,- k.k.
Zeer Royale en Moderne Twee-onder-een-kap woning met grote schuur !
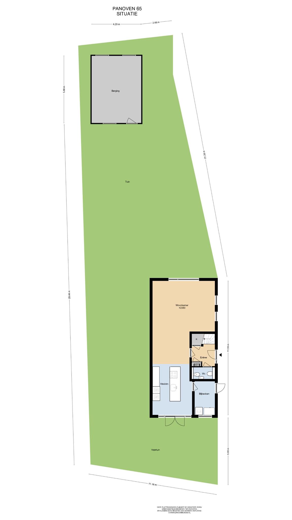
Deze luxe woning is op een ruim perceel van 397m2 gelegen op steenworp afstand van het gezellige historische centrum. De oprit biedt plaats voor meerdere auto’s.
Het bouwjaar van de woning is 2016 en is deze volledig geïsoleerd: dak-, muur- vloerisolatie alsmede dubbele beglazing, waardoor een Energielabel A is verkregen. Verwarming middels combiketel. Het woonoppervlak bedraagt ca. 163m2. De vrijstaande schuur heeft een oppervlak van 25m2 en is voor vele doeleinden geschikt (te maken). De ca. 20 meter diepe tuin is grotendeels voorzien van straatwerk.
Naast de gunstige ligging bij het centrum zijn alle dagelijkse voorzieningen als openbaar vervoer, scholen, kinderdagverblijf en winkels in de directe nabijheid te vinden. Dit geldt ook voor de ligging ten opzichte van de uitvalswegen.
Indeling:
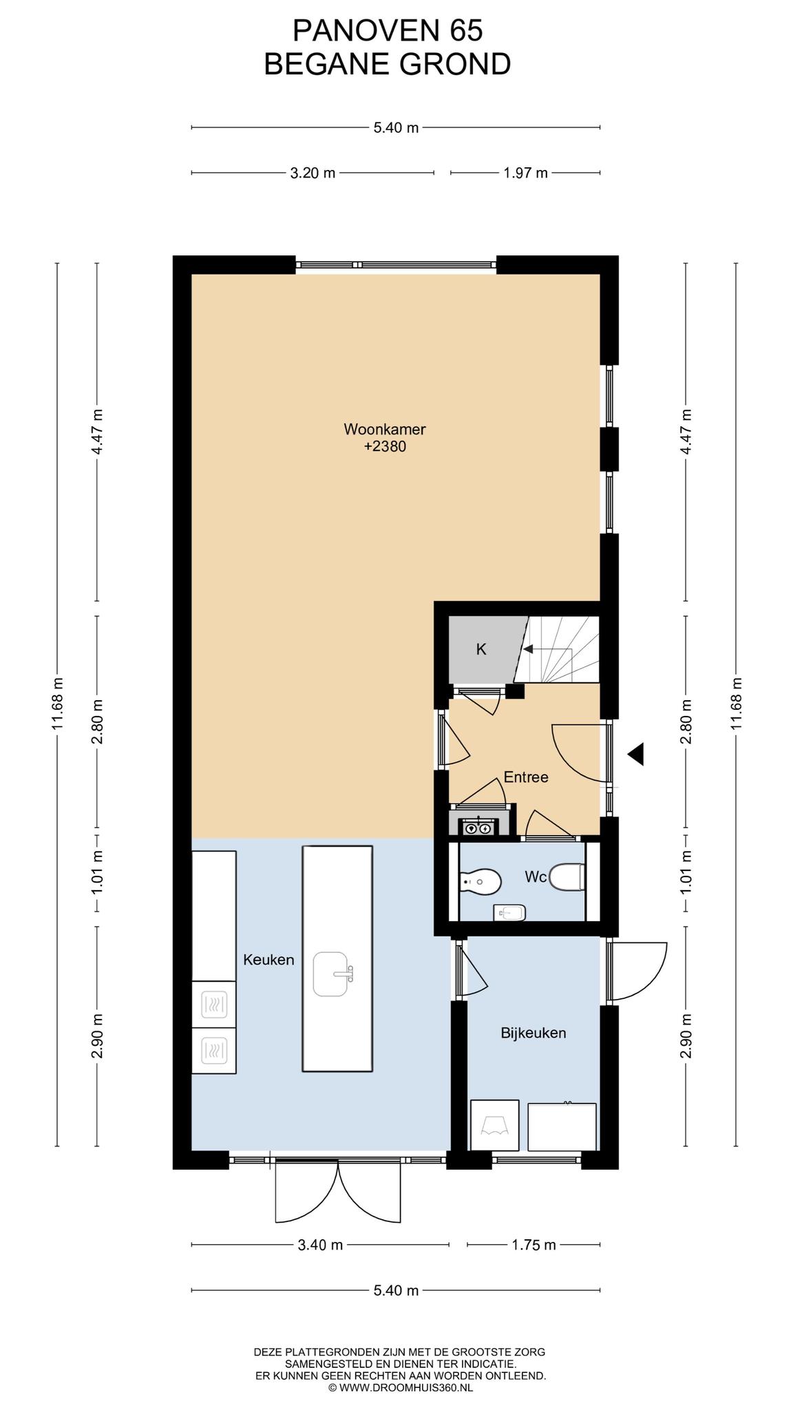
Begane grond: een fraaie deur in de zijgevel geeft toegang tot de entree/hal met modern toilet met extra urinoir, meterkast en trapkast. De ruime woonkamer en eetkeuken zijn bereikbaar vanuit de hal. De woonkamer is aan de voorzijde gesitueerd. De gezellige woon-/eetkeuken is aan de achterzijde gelegen. De moderne en uitgebreide keukeninrichting bestaan uit een keukenblok met inbouwapparatuur en kook-/spoeleiland. Alsmede is de praktische bijkeuken vanuit de keuken bereikbaar en beschikt deze over een eigen buitendeur. De openslaande deuren in de keuken geven toegang tot de achtergelegen tuin. De begane grond is voorzien van vloerverwarming.
1e verdieping: riante overloop met apart 2e toilet en inbouwkast en toegang tot de grote slaapkamer met inloopkast en de badkamer en-suite. De badkamer is uitgevoerd vloerverwarming, ligbad (whirlpool) en 2 persoons jacuzzi, inloopdouche en dubbele wastafel in meubel. De tweede en derde slaapkamer zijn aan de voorzijde gelegen.
2e verdieping: vaste trap naar de overloop met toegang de twee slaapkamers beiden met dakkapel en daartussen de tweede badkamer met wastafel en douche. De tweede verdieping is uitgerust met airco.
Kenmerken:
• Riante Twee-onder-een-kap woning
• Grote schuur
• Riant perceel
• Parkeren meerdere auto’s op eigen terrein
• Op steenworp afstand van historische binnenstad
• 5 slaapkamers
• Ouderslaapkamer met inloopkast en badkamer en-suite
• Luxe vloer- en wandafwerking in moderne kleurstelling
• Complete keukeninrichting met inbouwapparatuur en kook-/spoeleiland
• Luxe badkamer
• 2e badkamer
• Energielabel A
- 163 m2
- 397 m2
- 5
Kenmerken Panoven 65
Overdracht
| Vraagprijs | € 899.500,- k.k. |
|---|---|
| Aanvaarding | In overleg |
Oppervlaktes en inhoud
| Perceel oppervlakte | 397 m2 |
|---|---|
| Woonoppervlakte | 163 m2 |
| Inhoud | 471 m3 |
Bouw
| Soort | Eengezinswoning |
|---|---|
| Bouwvorm | Bestaande bouw |
| Bouwjaar | 2016 |
| Dak type | Dwarskap |
| Isolatievormen | Dakisolatie, Muurisolatie, Vloerisolatie, Dubbelglas |
| Energielabel | A |
Indeling
| Aantal verdiepingen | 3 |
|---|---|
| Aantal kamers | 6 |
| Aantal slaapkamers | 5 |
| Aantal badkamers | 2 |
Maandlasten
Ligging Panoven 65
Voorzieningen
Centraal gelegen informatie over de buurt
Aantal inwoners
In de gemeente
34.208