Ga naar inhoud

Te koop: woonhuis Barteldsgaarde 21 3436 RK Nieuwegein

Verkocht

€ 550.000,- k.k.

Deze sfeervolle en uitgebouwde ruime woning is gelegen op een fantastische locatie in de groene en kindvriendelijke woonwijk, ‘de Gaardes’, in Batau-Zuid. Nabij de woning zijn vele voorzieningen gelegen. De woning heeft door de gunstige ligging veel privacy. Tevens is de mogelijkheid om een vrijstaande garage met vliering bij te kopen! De woning beschikt over een voortuin en zonnige, diepe achtertuin gelegen op het zonnige westen.

Voorzieningen zoals scholen, winkels, openbaar vervoer en uitvalswegen (A2, A27 en A12) zijn in de directe omgeving aanwezig. Op loopafstand bevinden zich tevens veel speelgelegenheden, sportfaciliteiten, wandelpaden en prachtige natuur-, en wandelgelegenheden.

– Bouwjaar 1977
– Perceeloppervlakte 186 m2
– Woonoppervlakte ca. 143 m2
– Inhoud ca. 489 m3

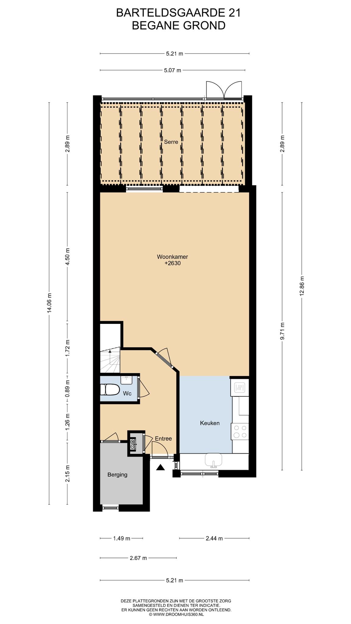
Indeling
Begane grond: Entree/ hal trapopgang, meterkast en een modern toilet met fonteintje. Via de hal is de ruim uitgebouwde en sfeervolle woonkamer met veel lichtinval te bereiken. De tuingerichte woonkamer beschikt door de fraaie ligging over optimale privacy. Aan de voorzijde van de woning is de keurige open inbouwkeuken gesitueerd. De keuken is voorzien van diverse inbouwapparatuur (Siemens). Op de begane grond ligt een moderne gietvloer met deels vloerverwarming. De wanden en plafonds zijn voorzien van strak stucwerk.

1ste verdieping
Via de overloop zijn 3 ruim bemeten slaapkamers en ook de moderne en luxe badkamer te bereiken. De moderne badkamer heeft de beschikking over een 2de zwevend toilet, dubbele wastafel, inloopdouche en vloerverwarming.

2e Verdieping
Op de voorzolder vindt u een wasruimte, opstelplaats voor de cv-ketel (Nefit, 2022) en toegang tot de bergvliering. Op de verdieping treffen we nog 2 goede slaapkamers waarvan 1 met dakkapel en screen.

Tuin
De achtertuin is zeer fraai gelegen en beschikt over voldoende privacy. De tuin is gelegen op het zonnige westen en door zijn vormgeving lekker speels. Verder is de tuin uitgerust met elektrapunten, buitenkraan en een achterom.

Garage (optioneel bij te kopen)
Zeer nabij de woning is de garage gelegen. De garage is ruim van opzet en voorzien van elektra en een riante, praktische bergvliering.

Oplevering in overleg

Vraagprijs € 550.000- k.k.

Bent u op zoek naar een instapklare woning? Wij nodigen u graag uit om te komen kijken!

Bijzonderheden:
– Mooie woonomgeving
– Fraaie ligging
– Goed onderhouden
– Onderhoudsvriendelijke kozijnen
– 11 zonnepanelen
– Uitgebouwde woonkamer
– 5 goede slaapkamers
– Moderne keuken, badkamer en toilet
– Quooker
– Dankzij het eigen kadastrale nummer biedt de garage extra mogelijkheden. U kunt deze niet alleen gebruiken voor opslag of parkeren, maar heeft ook de optie om deze in de toekomst afzonderlijk te verkopen.
– Extra optie om een garage met vliering aan te kopen (prijs: € 50.000,– k.k.)

Interesse in dit huis? Schakel direct uw eigen NVM-aankoopmakelaar in.
Uw NVM-aankoopmakelaar komt op voor uw belang en bespaart u tijd, geld en zorgen.
Adressen van collega NVM-aankoopmakelaars vindt u op Funda.

  • 143 m2
  • 186 m2
  • 5

Kenmerken Barteldsgaarde 21

Overdracht

Vraagprijs€ 550.000,- k.k.
AanvaardingIn overleg

Oppervlaktes en inhoud

Perceel oppervlakte186 m2
Woonoppervlakte143 m2
Inhoud489 m3

Bouw

SoortEengezinswoning
BouwvormBestaande bouw
Bouwjaar1977
Dak typeZadeldak
IsolatievormenDubbelglas
EnergielabelC

Indeling

Aantal verdiepingen3
Aantal kamers6
Aantal slaapkamers5
Aantal badkamers1

Maandlasten

Ligging Barteldsgaarde 21

Voorzieningen

Centraal gelegen informatie over de buurt

Aantal inwoners

In de gemeente

61.868

Leeftijd

in percentages van totaal

Huishoudsamenstelling

in percentages van totaal

29%

20% NL

30%

20% NL

41%

20% NL

Vergelijkbaar woningaanbod