Ga naar inhoud

Te koop: woonhuis Alblasserschans 22 3432 CA Nieuwegein

Verkocht

€ 447.500,- k.k.

In rustige straat, aan de rand van de woonwijk “Fokkesteeg” is deze heerlijk ruime eengezinswoning gelegen.
De uitvalswegen naar de A2 en A27, het bruisende stadscentrum met City Plaza, sportfaciliteiten, openbaar vervoer, scholen en het gezellige oude Vreeswijk zijn eenvoudig en snel te bereiken.

De woning is in 1980 gebouwd en voorzien van dak- en muurisolatie, dubbele beglazing, verwarming middels stadsverwarming waardoor het energielabel C is. Het woonoppervlak bedraagt ca. 113 m2. Achter de woning is een zonnige tuin op het Westen gelegen met veel privacy. En in de voortuin bevindt zich een ruime vrijstaande stenen berging. Het perceeloppervlak bedraagt 144m2.

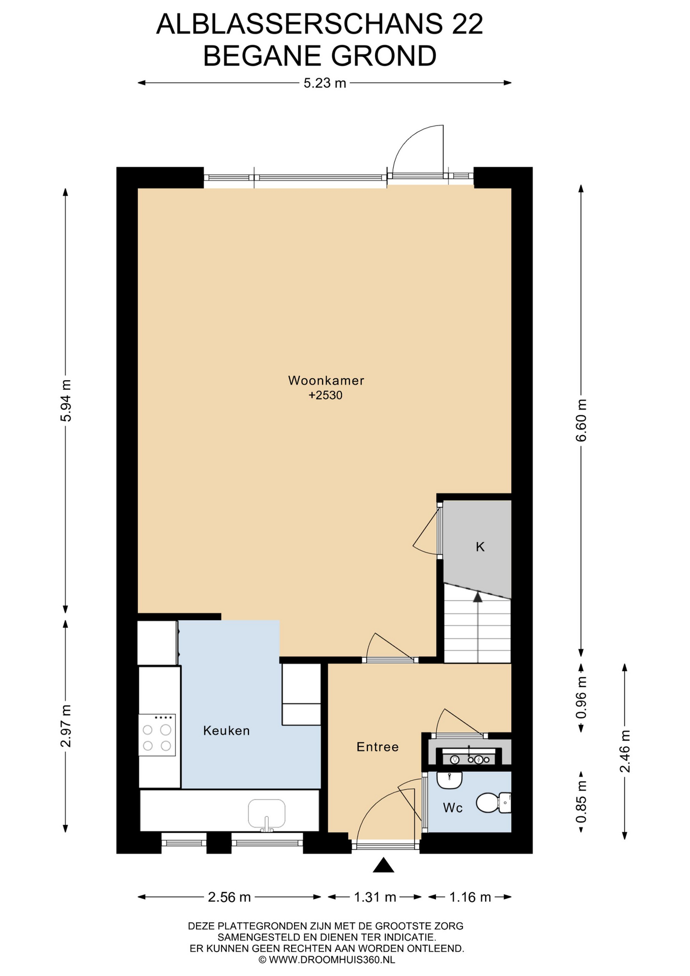
Indeling:
Begane grond: entree/hal met meterkast en toilet, ruime tuingerichte woonkamer met trapkast en een half open keuken aan de voorzijde. De keukeninrichting is in hoekopstelling met inbouwapparatuur. Gehele begane grond met keurige laminaatvloer.

1e verdieping: overloop naar 3 ruim opgezette slaapkamers. Nette badkamer met wastafel, ligbad en 2e toilet. Overloop en slaapkamers met laminaatvloeren. Ouderslaapkamer met airco unit.

2e verdieping: voorzolder met wasruimte, grote zolderkamer en divers bergruimte. Meerdere Velux dakramen zorgen voor een prettige lichtinval.

Kenmerken:
• Leuke ligging aan de rand van de woonwijk met veel groen
• Ruime en praktische indeling
• 4 slaapkamers
• Nabij alle voorzieningen
• Nette afwerking
• Energielabel C
• Verwarming middels stadsverwarming
• Zonnige achtertuin op het Westen
• Berging met elektra
• Airco unit

  • 113 m2
  • 144 m2
  • 4

Kenmerken Alblasserschans 22

Overdracht

Vraagprijs€ 447.500,- k.k.
AanvaardingIn overleg

Oppervlaktes en inhoud

Perceel oppervlakte144 m2
Woonoppervlakte113 m2
Inhoud385 m3

Bouw

SoortEengezinswoning
BouwvormBestaande bouw
Bouwjaar1980
Dak typeZadeldak
IsolatievormenDakisolatie, Muurisolatie, Dubbelglas
EnergielabelC

Indeling

Aantal verdiepingen3
Aantal kamers5
Aantal slaapkamers4
Aantal badkamers1

Maandlasten

Ligging Alblasserschans 22

Voorzieningen

Centraal gelegen informatie over de buurt

Aantal inwoners

In de gemeente

61.868

Leeftijd

in percentages van totaal

Huishoudsamenstelling

in percentages van totaal

35%

20% NL

26%

20% NL

38%

20% NL

Vergelijkbaar woningaanbod